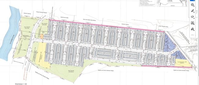
Área aprovada para Loteamento em Caçapava | 497 Lotes | Graph | 140 Mil m² Jardim Rafael, Caçapava-SP

Araújo Imóveis
Corretor de Imóveis

Dimensões e metragens

140.000,00 m² área total
Área total do terreno onde o imóvel está localizado

Confira mais detalhes sobre esta Área

OPORTUNIDADE ÚNICA PARA INCORPORADORES | ÁREA APROVADA EM CAÇAPAVA (497 Lotes).

Área estratégica à venda em Caçapava/SP, com 140.000 m², ideal para loteamento residencial, já com projeto aprovado e enorme potencial de valorização.

Destaques do ativo:
140.000 m² de área total
Projeto aprovado na Prefeitura e no GRAPROHAB
(faltando apenas registro final no Graprohab)
497 lotes aprovados
Fundos para o Anel Viário de Caçapava
(obra já com recursos garantidos pelo Governo do Estado – Gov. Tarcísio)
- Agua, Luz e Esgoto na Porta.

Localização estratégica, com forte crescimento urbano e logístico

Estrutura jurídica segura:

Projeto estruturado em SPE
Empresa 100% regular, com todas as declarações fiscais entregues mensalmente | Uníco Ativo.

Possibilidade de venda via cessão das cotas da SPE, facilitando a operação e reduzindo riscos e custos para o comprador

Condição de venda:
Somente venda
Valor: R$ 19.000.000,00

👉 Ativo raro no mercado, pronto para desenvolver, com aprovações avançadas e infraestrutura pública garantida no entorno.

Ideal para investidores, loteadores e incorporadoras que buscam segurança jurídica, escala e alto potencial de retorno.

Araújo Imóveis | Realizar o seu sonho ou um ótimo investimento, é o nosso objetivo!

#Caçapava #ÁreaParaLoteamento #InvestimentoImobiliário #Incorporadoras #AraújoImóveis

Quer mais informações?

Fale com um especialista para te ajudar. Sem compromisso.

Quero falar com um especialista

Segurança

Cerca
Muros e Grades

Lazer e natureza

Rio

Infraestrutura

Energia Elétrica
Esgoto
Esquina
Estrada Asfaltada
Poço
Reservatório de Água
Araújo Imóveis
Corretor de Imóveis

Gostou desta área?

Conheça a região do bairro Jardim Rafael

Gostou desta área?

Preencha o formulário abaixo e tire todas suas dúvidas sem compromisso.

WhatsApp
x

Olá! Preencha os campos abaixo para iniciar a conversa no WhatsApp